-
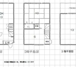
一室一室が広々なお家です!!
05-033【堂ノ前町】中古一戸建て
-
利便性の高い広々一軒家!
05-032【西京極東町】中古一戸建て
-
ひっそりとした場所に建つ、和風なお家です!
05-031【花園扇野町】中古一戸建て
-
まだ見ぬお家に思いをはせて…
05-030【太秦安井西裏町】条件付土地
-
ほどよい大きさ18.40坪!!お好みのハウスメーカーでの建築可能です!!
05-029【太秦和泉式部町】条件無し土地!!
-
老舗マンション「友禅ハイツ」敷地も借地権から買取ができるようになりました!!
05-028【友禅ハイツ】8F
-
ちょうどいい大きさで条件無し土地!!
05-027【太秦青木元町】条件無し土地20坪超!!
-
軽1台駐車可で作業場/工房なんかにどうでしょうか?
05-026【太秦松本町】工房なんかにいかが!?
-
閑静な住宅地でお好みの新築計画を!!
05-025【嵯峨大覚寺門前堂ノ前町】条件無し土地
-
名称長いですけど問い合わせのある良いところみたいですよ?
05-024【嵯峨大覚寺門前堂ノ前町】条件付き土地